Kapellengasse 15
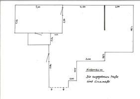
In der Wertheimer Altstadt steht eine großzügige Gewerbefläche mit einer Größe von rund 135 m² zur Vermietung. Die beiden Räume liegen direkt nebeneinander und sind miteinander verbunden. Das Objekt verfügt über eine Toilette sowie aktuell über zwei Kühlhäuser, die noch eingebaut sind. Die Nebenkosten werden nach Verbrauch und anteilig umgelegt.
Kontakt
Herr Heiko Albrecht
Telefon: 0174/2070858















