Sonderriet
Sonderriet mit seinen rund 490 Einwohnern liegt auf der Höhe zwischen Wertheim und Miltenberg.
Näheres erfahren Sie auf der Homepage der Ortschaft Sonderriet.
Infrastruktur
- Spielplatz in der Nähe des Baugebietes
- Kindergarten im Ort
- Grundschule in Nassig (Bustransfer)
- Busverbindung nach Wertheim
- Anschlussstelle an die Bundesautobahn A3: Nr. 65 "Marktheidenfeld" in
ca. 18 km oder Nr. 66 "Wertheim/Lengfurt" in ca. 20 km - Internet-Geschwindigkeit bis 1.000 Mbit/s
- Lebensmittelnahversorgung:
Obst Baumann (Hofladen und Brennerei), mobile Bäckerei, weitere Lebensmittel-Einzelhandelsgeschäfte in ca. 3 km - Medizinische Versorgung:
Krankenhaus und verschiedene Allgemeinmediziner/Fachärzte in ca. 10 km Entfernung - Wanderwege auf der Höhe
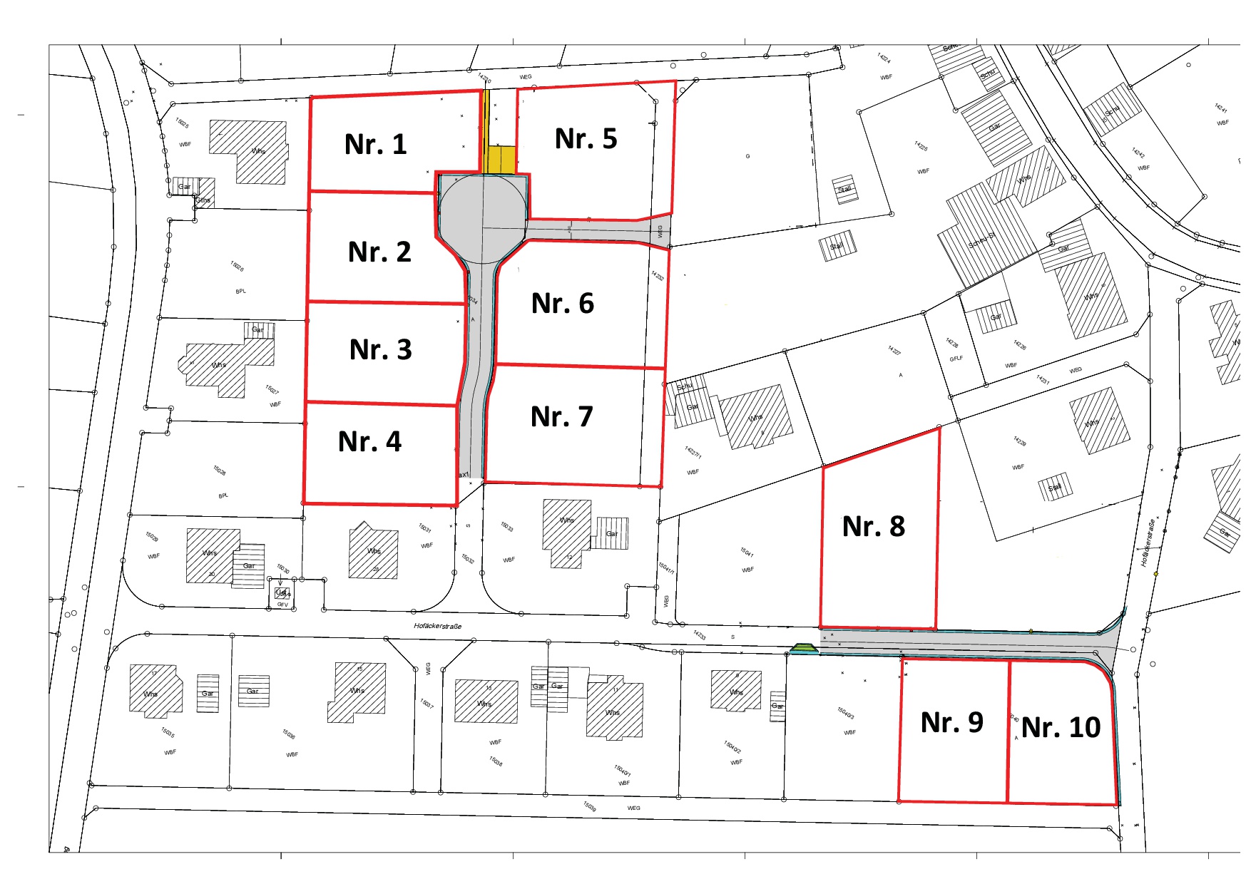
Baugebiet "Hofäcker"
Das Baugebiet wurde 2021 mit 10 neuen Bauplätzen in Sonderriet erschlossen. Der Preis pro m² liegt bei 139,50 Euro.
Im Kaufpreis sind die erstmaligen Kosten für die öffentlichen Erschließungsanlagen, sowie der Abwasserbeitrag enthalten. Die Hausanschlüsse für Wasser und Abwasser sind bis ca. 1 m ins Baugrundstück verlegt. Anschlusskosten für Wasser und Strom sind mit den Versorgungsträgern gesondert abzurechnen. Weitere Informationen hierzu erhalten Sie auf der Homepage der Stadtwerke Wertheim GmbH.
Bauplätze
- 1 = verkauft
- 2 = verkauft
- 3 = verkauft
- 4 = verkauft
- 5 = Flst.Nr. 15045 mit 825 m² = 115.087,50 €
- 6 = verkauft
- 7 = Flst.Nr. 15034 mit 835 m² = 116.482,50 €
- 8 = verkauft
- 9 = verkauft
- 10 = verkauft
Informationen zum Bebauungsplan erhalten Sie hier.



